orderPresentation: False

Byhøjbakken

Aarhus

Rækkehus 5 Værelser 123 m²

F-115-5-1 | Byhøjbakken 34

5-værelses rækkehus med alt i hårde hvidevarer.
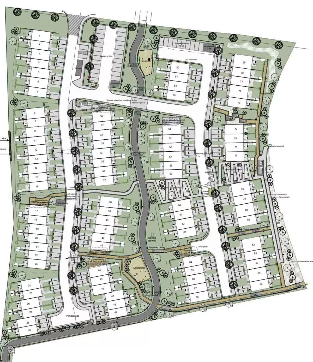
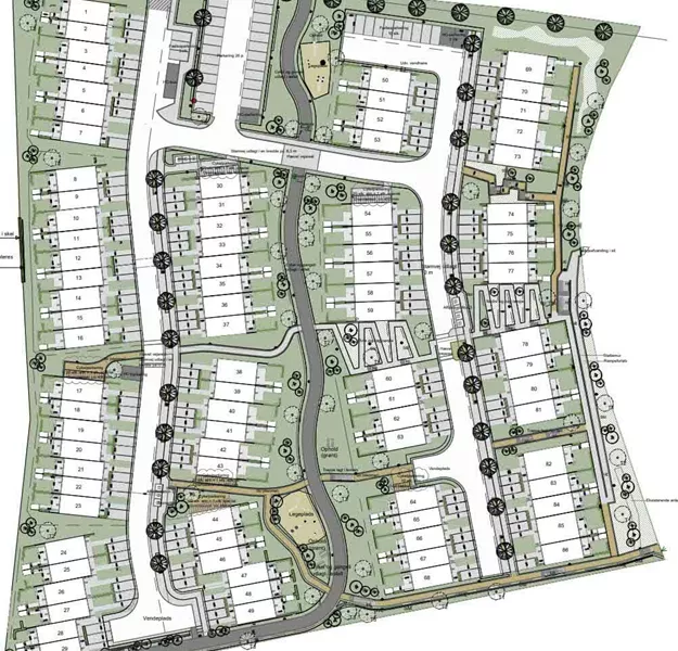
Obs. alle billeder og plantegninger er vejledende.

Åbent hus d. 30. oktober Læs mere om området

Beskrivelse af boligen

Køkken og stue
Boligens køkken-alrum er placeret på stueetagen. Køkkenet er opført i lyse og stilrene materialer, indeholder alt i hårde hvidevarer og er placeret i den ene ende af boligen. I forlængelse af køkkenet er der plads til et spiseområde samt til at indrette en hyggelig stue.

Værelser
Denne bolig er udstyret med hele fire værelser – et soveværelse med tre indbyggede garderobeskabe samt tre ekstra værelser med et skab hver. Pladsen er placeret i hvert sit hjørne af 1. sal, adskilt af en lille gang i midten.

Badeværelse
Boligen opføres med et badeværelse på hver etage. Hvert badeværelse er udstyret med en moderne bruseniche, toilet og håndvask med opbevaring. Badeværelset på stueetagen indeholder desuden en vaskesøjle med vaskemaskine og tørretumbler.

Entré/Bryggers
Boligens entré ligger på stueetagen. Entréen indeholder et garderobeskab samt adgang til teknik. Herfra er der forbindelse til boligens køkken-alrum og ene badeværelse.

Uderum
Til boligen hører til uderum – et foran boligen og et bag boligen. Foran boligen er et flisebelagt areal samt et mindre græsareal. Bag boligen finder du eget opbevaringsskur, en hyggelig terrasse og et mindre areal med græs. Der er adgang til terrassen fra boligens køkken-alrum. Boligen har privat parkering. Obs. alle billeder og plantegninger er vejledende.

Specifikationer

Type Rækkehus
Energimærke A2020
Indrykket 23.10.2025
Område Byhøjbakken
Husleje
Depositum
A/C vand & varme Afregnes med forsyning
Retning V
Etager Stuen
Værelser 5
Areal 123 m²
Husdyr Ja
Parkering Privat
Ledig Udlejet

Plantegninger

Beregn din boligstøtte

Når du trykker beregn, vil du under alle boliger kunne se, hvor meget boligstøtte I ca. kan få.
Obs. Boligstøtteberegneren er kun vejledende.

Ønsker du en beregner med flere muligheder, finder du en officiel beregner hos borger.dk

Video: Rækkehus | 5 Værelser | 123 m²

Kontakt vores udlejningsrådgiver

Karin Nyhus
Udlejningsrådgiver,

Byhøjbakken

93 63 70 62
knh@birchgm.dk

Bliv kontaktet

Har du spørgsmål til et af vores projekter, sidder vi klar til at hjælpe dig. Udfyld felterne nedenfor, og den udlejningsansvarlige for projektet vil kontakte dig hurtigst mulig.

Bestil fremvisning

Vi glæder os til at fremvise vores nye og moderne lejeboliger til dig. Den udlejningsansvarlige for dette projekt vil kontakte dig, så I sammen kan aftale en tid for fremvisning.

Bestil brochure

Modtag vores lækre udlejningsbrochure og dyk ned i de forskellige boliger og det fantastiske område, som de ligger placeret i. Du modtager brochuren på mail.

*Ved tilmelding accepterer du at modtage Birch Ejendommes nyhedsbrev. Samtidig accepterer du, at vi registrerer og behandler dine oplysninger. Dine oplysninger anvendes udelukkende til at udsende nyhedsbreve til dig. Du kan altid afmelde din tilmelding.

houses








Vis alle beliggenheder

Boligtype



Husleje - DKK

Størrelse - m²