orderPresentation: False

Karine Krumpen

Horsens

Lejlighed 2 Værelser 46 m²

E-45-2 | Karine Krumpen 64, 2., 4

Opdag en kompakt toværelses lejebolig i Horsens, der er ideel for studerende. Nyd at bo til leje i en moderne toværelses lejlighed, kun en kort cykeltur fra byens centrum. Til boligen hører eget skur.

Kontakt udlejningsrådgiver Jeanette: Tlf. 93 63 70 65 eller mail jsl@birchgm.dk

Læs mere om området

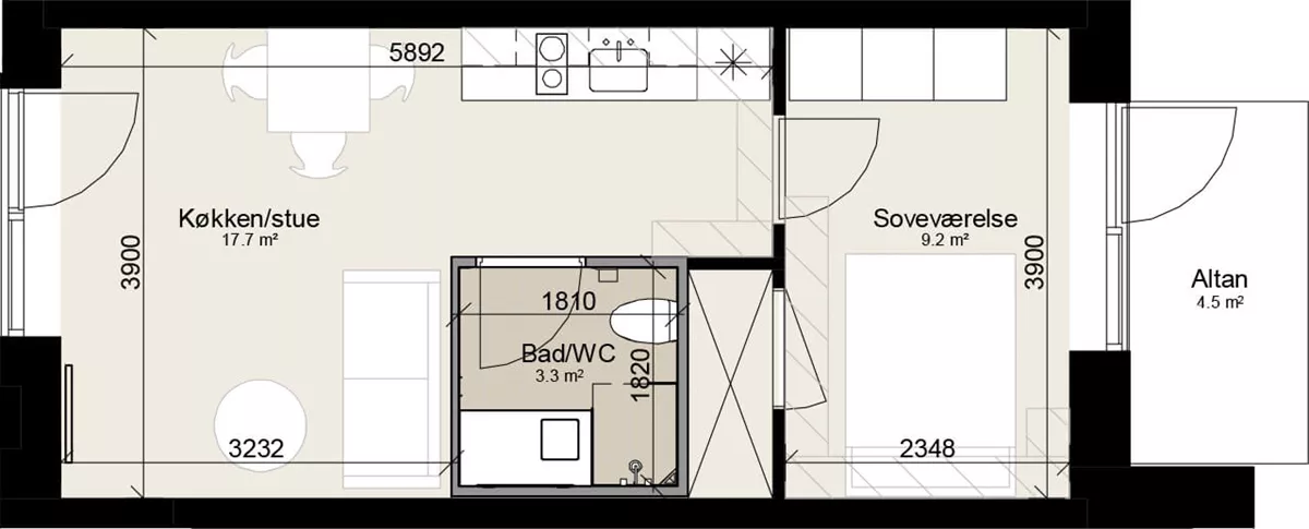
Beskrivelse af boligen

Køkken og stue
Denne lyse lejlighed fungerer opføres med et åbent køkken-alrum, hvor køkkenet smelter sammen med stuen. Køkkenet er designet med lyse og elegante materialer og inkluderer nødvendige hårde hvidevarer.

Soveværelse
Lejlighedens lyse soveværelse er beliggende i den ene ende af boligen og indeholder hele tre fastmonterede garderobeskabe. Dertil er der fin plads til en dobbeltseng.

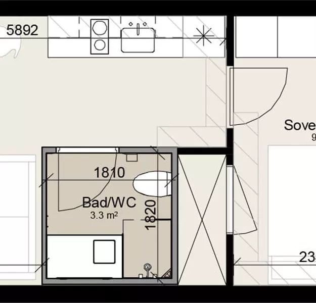
Badeværelse
Lejlighedens lyse badeværelse har en stilfuld og enkel indretning og indeholder bruseniche, toilet, håndvask og opbevaringsskab. Badeværelset er også udstyret med en vaskesøjle, der inkluderer vaskemaskine og tørretumbler.

Altan/Terrasse
Fra stuen er der direkte adgang til en egen terrasse/altan, hvor du kan nyde frisk luft og udendørs øjeblikke.

Specifikationer

Type Lejlighed
Energimærke A2015
Indrykket 07.05.2025
Område Karine Krumpen
Husleje
Depositum
A/C vand & varme Varme og el afregnes med forsyning. Vand 250 kr. aconto.
Retning SV
Etager 2. Sal
Værelser 2
Areal 46 m²
Husdyr Ja
Parkering Fælles
Ledig Udlejet

Plantegninger

Beregn din boligstøtte

Når du trykker beregn, vil du under alle boliger kunne se, hvor meget boligstøtte I ca. kan få.
Obs. Boligstøtteberegneren er kun vejledende.

Ønsker du en beregner med flere muligheder, finder du en officiel beregner hos borger.dk

Video: Lejlighed | 2 Værelser | 46 m²

Kontakt vores udlejningsrådgiver

Hanne Loumand Jørgensen
Udlejningsrådgiver,

Karine Krumpen

+45 54 55 73 20
hlj@birchgm.dk

Bliv kontaktet

Har du spørgsmål til et af vores projekter, sidder vi klar til at hjælpe dig. Udfyld felterne nedenfor, og den udlejningsansvarlige for projektet vil kontakte dig hurtigst mulig.

Bestil fremvisning

Vi glæder os til at fremvise vores nye og moderne lejeboliger til dig. Den udlejningsansvarlige for dette projekt vil kontakte dig, så I sammen kan aftale en tid for fremvisning.

Bestil brochure

Modtag vores lækre udlejningsbrochure og dyk ned i de forskellige boliger og det fantastiske område, som de ligger placeret i. Du modtager brochuren på mail.

*Ved tilmelding accepterer du at modtage Birch Ejendommes nyhedsbrev. Samtidig accepterer du, at vi registrerer og behandler dine oplysninger. Dine oplysninger anvendes udelukkende til at udsende nyhedsbreve til dig. Du kan altid afmelde din tilmelding.

houses






Vis alle beliggenheder

Boligtype



Husleje - DKK

Størrelse - m²