orderPresentation: False

Harehaven

Støvring

Rækkehus 5 Værelser 113 m²

H-115-5 | Haren 206

Stort og lyst femværelses rækkehus med plads til hele familien. Rækkehuset er opført med en god planløsning og skønne udearealer med egen terrasse og have.

Læs mere om området

Beskrivelse af boligen

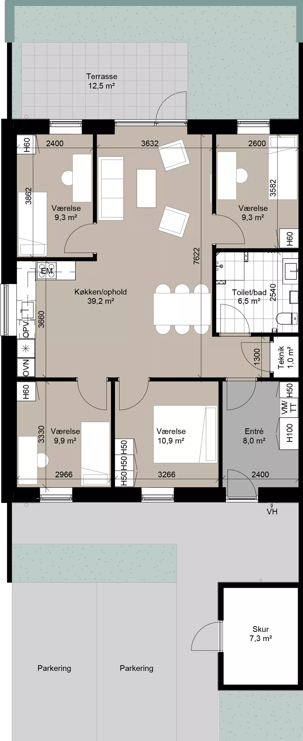
Køkken-alrum og stue
Dette skønne femværelses rækkehus byder på et stort og åbent køkken-alrum, hvor der er god plads til at have besøg af venner og familie samt nyde hyggelige aftener hjemme på sofaen. Køkkenet er centralt placeret i boligen, indeholder alt i hårde hvidevarer og opføres i moderne materialer der passer til de flestes smag.

Værelser
Boligen har et stort soveværelse med tre opbevaringsskabe og god plads til dobbeltseng og ekstra møbler. Derudover er der tre ekstra værelser, hvor der er plads til både børn, gæster og kontor. Alle værelser er opført med højskabe.

Badeværelse
Centralt placeret i boligen findes det lækre badeværelse med bruseniche, toilet, håndvask og hængende opbevaringsplads i stilrene materialer.

Entré/Bryggers
Når man træder ind i boligen, bliver man mødt af den fine entré. Denne er designet med masser af opbevaringsplads, vaskemaskine og tørretumbler. Ønskes mere opbevaring, er der også plads til det.

Uderum 
Både foran og bag boligen er der placeret skønne uderum. Fra boligens køkken-alrum bliver man ledt ud til den hyggelige baghave hvor der både er en stor terrasse samt græsareal. Foran boligen er der to private parkeringspladser, eget skur og god plads til at placeret lidt havemøbler.

Obs. alle billeder og plantegninger er vejledende.

Specifikationer

Type Rækkehus
Energimærke BR18
Indrykket 18.03.2024
Område Harehaven
Husleje
Depositum
A/C vand & varme Varme og el afregnes med forsyning. Vand 250 kr. aconto.
Retning
Etager Stuen
Værelser 5
Areal 113 m²
Husdyr Ja
Parkering Privat
Ledig Udlejet

Plantegninger

Beregn din boligstøtte

Når du trykker beregn, vil du under alle boliger kunne se, hvor meget boligstøtte I ca. kan få.
Obs. Boligstøtteberegneren er kun vejledende.

Ønsker du en beregner med flere muligheder, finder du en officiel beregner hos borger.dk

Kontakt vores udlejningsrådgiver

Hanne Loumand Jørgensen
Udlejningsrådgiver,

Harehaven

+45 54 55 73 20
hlj@birchgm.dk

Bliv kontaktet

Har du spørgsmål til et af vores projekter, sidder vi klar til at hjælpe dig. Udfyld felterne nedenfor, og den udlejningsansvarlige for projektet vil kontakte dig hurtigst mulig.

Bestil fremvisning

Vi glæder os til at fremvise vores nye og moderne lejeboliger til dig. Den udlejningsansvarlige for dette projekt vil kontakte dig, så I sammen kan aftale en tid for fremvisning.

Bestil brochure

Modtag vores lækre udlejningsbrochure og dyk ned i de forskellige boliger og det fantastiske område, som de ligger placeret i. Du modtager brochuren på mail.

*Ved tilmelding accepterer du at modtage Birch Ejendommes nyhedsbrev. Samtidig accepterer du, at vi registrerer og behandler dine oplysninger. Dine oplysninger anvendes udelukkende til at udsende nyhedsbreve til dig. Du kan altid afmelde din tilmelding.

houses








Vis alle beliggenheder

Boligtype



Husleje - DKK

Størrelse - m²