orderPresentation: False

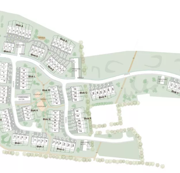
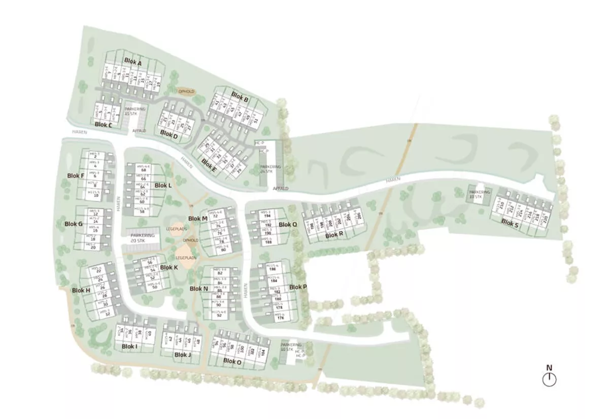
Harehaven

Støvring

Rækkehus 2 Værelser 74 m²

H-75-2 | Haren 36

Lyst og indbydende toværelses rækkehus med rummeligt køkken-alrum og dejlige udeområder. Denne bolig har privat parkeringsplads.

Læs mere om området

Beskrivelse af boligen

Køkken-alrum og stue
Denne fine bolig er indrettet med et stort og rummeligt Køkken-alrum. Køkkenet er opført i materialer fra HTH med alt i hårde hvidevarer og er placeret i en vinkel i det ene hjørne. Dermed er pladsen optimeret og der er god plads til et større spiseområde samt skønt sofa- og stueområde ud til boligens terrasse og have.

Soveværelse
Boligens soveværelse er placeret i boligens ene ende og indeholder tre fastmonterede højskabe. Skabene er optimalt placeret, så de er lette at indrette rundt om.

Badeværelse
Badeværelset indeholder bruseniche, toilet, håndvask og opbevaringsskab. Det er opført i moderne materialer der passer ind i resten af boligens udtryk.

Entré/Bryggers
Når du træder ind i rækkehuset, møder du den indbydende entré. Entréen er udstyret med god opbevaring og her finder du også vaskemaskine og tørretumbler. Ønsker du yderligere opbevaring er der ligeledes plads til dette.

Uderum
Fra boligens køkken-alrum, træder du direkte ud til boligens skønne terrasse og mindre have. Her får du rig mulighed for at indrette som det passer dig. Foran boligen er der også et større flisebelagt areal. Til boligen hører et privat udendørsskur.

Obs. alle billeder og plantegninger er vejledende.

Specifikationer

Type Rækkehus
Energimærke BR18
Indrykket 18.03.2024
Område Harehaven
Husleje
Depositum
A/C vand & varme Spildevand 250 kr. aconto. Resten afregnes med forsyning.
Retning S
Etager Stuen
Værelser 2
Areal 74 m²
Husdyr Ja
Parkering Privat
Ledig Udlejet

Plantegninger

Beregn din boligstøtte

Når du trykker beregn, vil du under alle boliger kunne se, hvor meget boligstøtte I ca. kan få.
Obs. Boligstøtteberegneren er kun vejledende.

Ønsker du en beregner med flere muligheder, finder du en officiel beregner hos borger.dk

Kontakt vores udlejningsrådgiver

Hanne Loumand Jørgensen
Udlejningsrådgiver,

Harehaven

+45 54 55 73 20
hlj@birchgm.dk

Bliv kontaktet

Har du spørgsmål til et af vores projekter, sidder vi klar til at hjælpe dig. Udfyld felterne nedenfor, og den udlejningsansvarlige for projektet vil kontakte dig hurtigst mulig.

Bestil fremvisning

Vi glæder os til at fremvise vores nye og moderne lejeboliger til dig. Den udlejningsansvarlige for dette projekt vil kontakte dig, så I sammen kan aftale en tid for fremvisning.

Bestil brochure

Modtag vores lækre udlejningsbrochure og dyk ned i de forskellige boliger og det fantastiske område, som de ligger placeret i. Du modtager brochuren på mail.

*Ved tilmelding accepterer du at modtage Birch Ejendommes nyhedsbrev. Samtidig accepterer du, at vi registrerer og behandler dine oplysninger. Dine oplysninger anvendes udelukkende til at udsende nyhedsbreve til dig. Du kan altid afmelde din tilmelding.

houses








Vis alle beliggenheder

Boligtype



Husleje - DKK

Størrelse - m²