orderPresentation: False

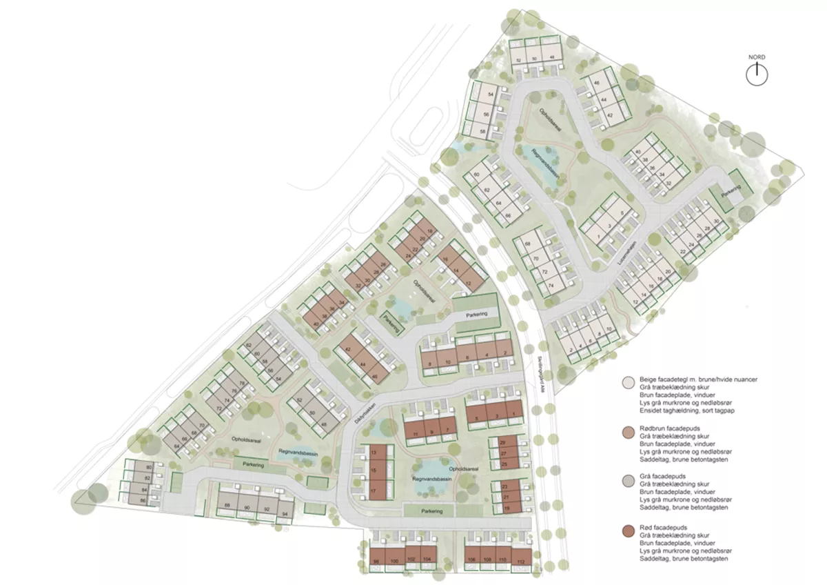
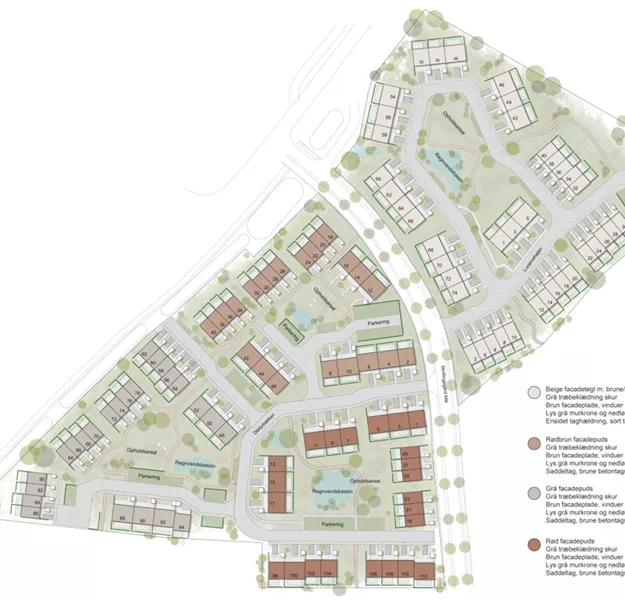
Lucernehøjen

Middelfart

Rækkehus 4 Værelser 110 m²

F-105-4 | Dådyrbakken 25

Dejligt 4-værelses rækkehus i 2-plan. Værelserne er placeret på 1. sal. Obs. alle billeder, plantegninger og visualiseringer er vejledende.

Læs mere om området

Beskrivelse af boligen

Køkken og stue
Dette rummelige rækkehus i to plan byder på et hyggeligt køkken-alrum, hvor køkken og stue naturligt opdeles af trappen. Køkkenet er praktisk placeret i en vinkel og er udstyret med moderne hårde hvidevarer. Spiseområdet og stuen ligger i forlængelse af køkkenet, og herfra er der direkte adgang til boligens udendørsareal.

Værelser
På 1. sal finder du boligens tre værelser. Soveværelset fylder den ene ende af etagen og har plads til en stor dobbeltseng samt ekstra møbler. Fra soveværelset er der adgang til et ekstra rum på ca. 5 m2, som er indrettet med tre fastmonterede skabe og kan bruges som walk-in-closet eller kontor. De to øvrige værelser har også opbevaringsskabe og er velegnede til brug som børneværelser, kontor eller hobbyrum, med plads til seng og andre møbler.

Badeværelse
Boligen har et badeværelse på 1. sal samt et toilet med vaskemaskine og tørretumbler i stueetagen.

Entré/Bryggers
Entréen ligger i stueetagen og har tre fastmonterede garderobeskabe. Her er der god plads til at opsætte en skohylde og knagerække for at skabe en praktisk garderobeløsning.

Uderum
Boligen har dejlige udendørsarealer både foran og bagved. Foran er der et flisebelagt område, hvor du finder dit skur. Bagved findes en terrasse og et mindre græsareal. Bemærk, at alle billeder og plantegninger er vejledende.

Specifikationer

Type Rækkehus
Energimærke A2015
Indrykket 06.01.2025
Område Lucernehøjen
Husleje
Depositum
Retning V
Etager Stuen
Værelser 4
Areal 110 m²
Husdyr Ja
Parkering Fælles
Ledig Udlejet

Plantegninger

Beregn din boligstøtte

Når du trykker beregn, vil du under alle boliger kunne se, hvor meget boligstøtte I ca. kan få.
Obs. Boligstøtteberegneren er kun vejledende.

Ønsker du en beregner med flere muligheder, finder du en officiel beregner hos borger.dk

Kontakt vores udlejningsrådgiver

Sonja Wind
Udlejningsrådgiver,

Lucernehøjen

91 89 99 91
swi@birchgm.dk

Bliv kontaktet

Har du spørgsmål til et af vores projekter, sidder vi klar til at hjælpe dig. Udfyld felterne nedenfor, og den udlejningsansvarlige for projektet vil kontakte dig hurtigst mulig.

Bestil fremvisning

Vi glæder os til at fremvise vores nye og moderne lejeboliger til dig. Den udlejningsansvarlige for dette projekt vil kontakte dig, så I sammen kan aftale en tid for fremvisning.

Bestil brochure

Modtag vores lækre udlejningsbrochure og dyk ned i de forskellige boliger og det fantastiske område, som de ligger placeret i. Du modtager brochuren på mail.

*Ved tilmelding accepterer du at modtage Birch Ejendommes nyhedsbrev. Samtidig accepterer du, at vi registrerer og behandler dine oplysninger. Dine oplysninger anvendes udelukkende til at udsende nyhedsbreve til dig. Du kan altid afmelde din tilmelding.

houses








Vis alle beliggenheder

Boligtype



Husleje - DKK

Størrelse - m²