orderPresentation: False

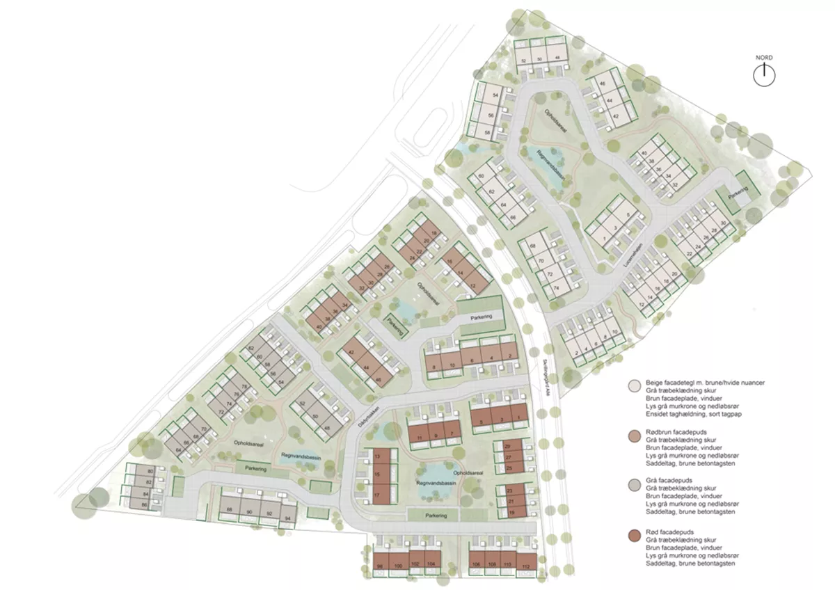
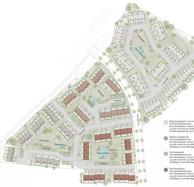
Lucernehøjen

Middelfart

Rækkehus 5 Værelser 117 m²

F-115-5 | Dådyrbakken 21

Stort 5-værelses rækkehus med plads til hele familien. Obs. alle billeder, plantegninger og visualiseringer er vejledende.

Læs mere om området

Beskrivelse af boligen

Køkken og stue
Boligens store køkken-alrum er placeret på stueetagen af denne fine bolig. Køkkenet er opført i lyse og stilrene materialer, indeholder alt i hårde hvidevarer og er placeret i den ene ende af boligen, her er også en praktisk køkkenø. I forlængelse af køkkenet er der god plads til et spiseområde samt til at indrette en hyggelig stue.

Værelser
Denne bolig er udstyret med hele fire værelser. Alle værelserne har fastmonterede garderobeskabe. Værelserne er placeret i hvert sit hjørne af 1. sal, adskilt af en lille gang i midten.

Badeværelse
Boligen opføres med et badeværelse på 1. sal og et toilet i stueetagen. Badeværelset er udstyret med en moderne bruseniche, toilet og håndvask med opbevaring. Toilettet på stueetagen indeholder desuden en vaskesøjle med vaskemaskine og tørretumbler.

Entré/Bryggers
Boligens entré ligger på stueetagen. Her finder du teknikskabe og fin plads til en lille knagerække samt en skohylde.

Uderum
Til boligen hører to uderum – et foran boligen og et bag boligen. Foran boligen er et flisebelagt areal samt dit opbevaringsskur. Bag boligen finder du en hyggelig terrasse og et mindre areal med græs. Der er adgang til terrassen fra boligens køkken-alrum. Obs. alle billeder og plantegninger er vejledende.

Specifikationer

Type Rækkehus
Energimærke A2015
Indrykket 06.01.2025
Område Lucernehøjen
Husleje
Depositum
Retning V
Etager Stuen
Værelser 5
Areal 117 m²
Husdyr Ja
Parkering Fælles
Ledig Udlejet

Plantegninger

Beregn din boligstøtte

Når du trykker beregn, vil du under alle boliger kunne se, hvor meget boligstøtte I ca. kan få.
Obs. Boligstøtteberegneren er kun vejledende.

Ønsker du en beregner med flere muligheder, finder du en officiel beregner hos borger.dk

Kontakt vores udlejningsrådgiver

Sonja Wind
Udlejningsrådgiver,

Lucernehøjen

91 89 99 91
swi@birchgm.dk

Bliv kontaktet

Har du spørgsmål til et af vores projekter, sidder vi klar til at hjælpe dig. Udfyld felterne nedenfor, og den udlejningsansvarlige for projektet vil kontakte dig hurtigst mulig.

Bestil fremvisning

Vi glæder os til at fremvise vores nye og moderne lejeboliger til dig. Den udlejningsansvarlige for dette projekt vil kontakte dig, så I sammen kan aftale en tid for fremvisning.

Bestil brochure

Modtag vores lækre udlejningsbrochure og dyk ned i de forskellige boliger og det fantastiske område, som de ligger placeret i. Du modtager brochuren på mail.

*Ved tilmelding accepterer du at modtage Birch Ejendommes nyhedsbrev. Samtidig accepterer du, at vi registrerer og behandler dine oplysninger. Dine oplysninger anvendes udelukkende til at udsende nyhedsbreve til dig. Du kan altid afmelde din tilmelding.

houses








Vis alle beliggenheder

Boligtype



Husleje - DKK

Størrelse - m²