orderPresentation: False

Lucernehøjen

Middelfart

Rækkehus 3 Værelser 98 m²

F-95-3 | Dådyrbakken 70

Stort 3-værelses rækkehus i 2-plan. Obs. alle billeder, plantegninger og visualiseringer er vejledende. Denne bolig er spejlvendt ift. plantegningen.

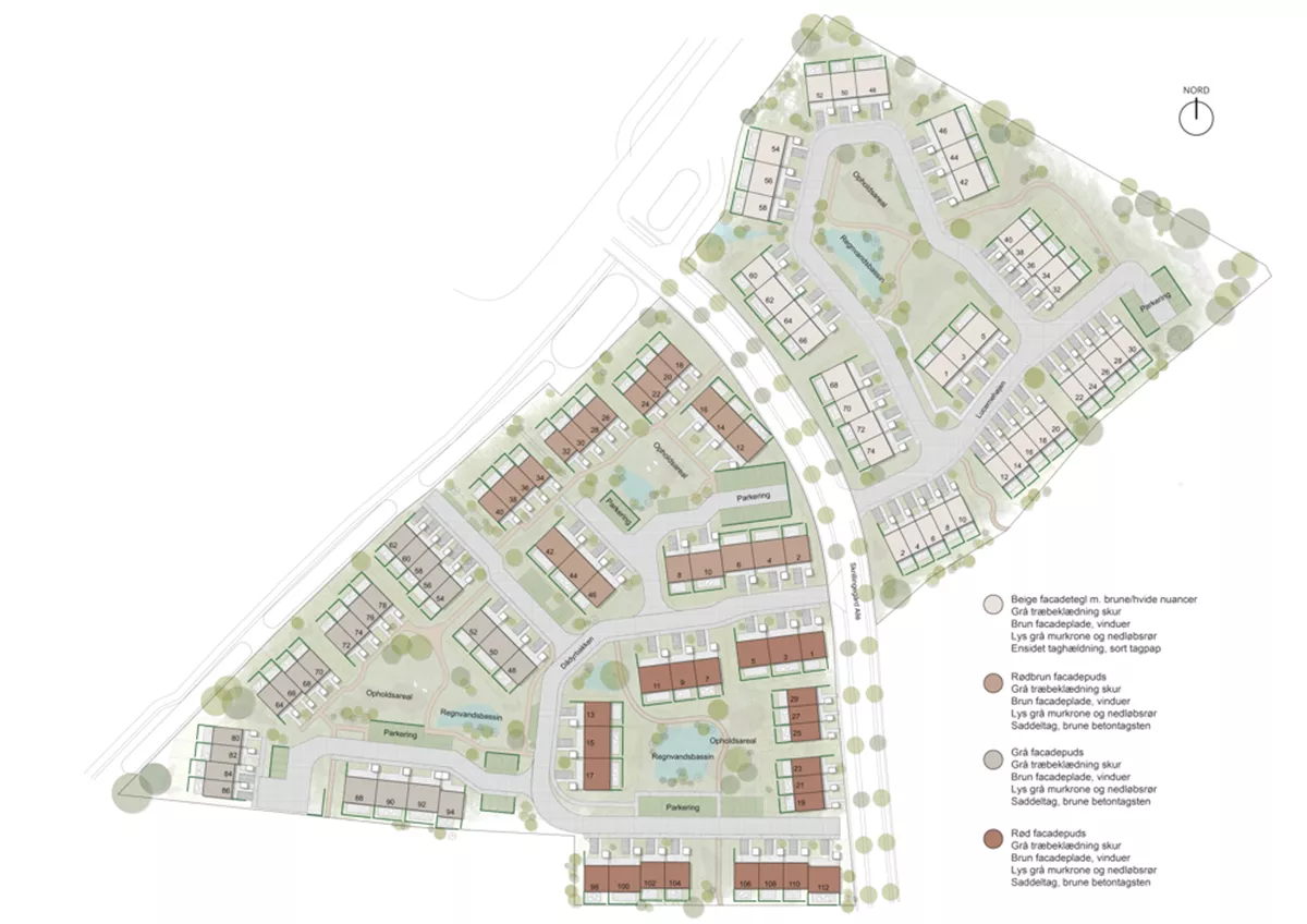
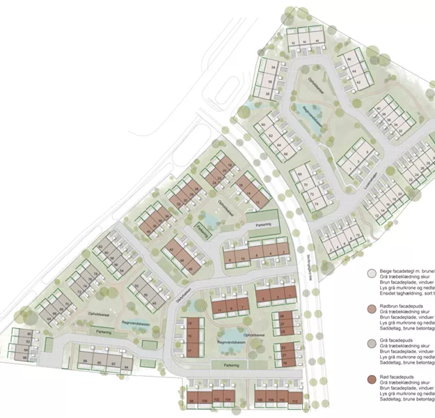
Læs mere om området

Beskrivelse af boligen

Køkken og stue
Hvis du drømmer om et stort 3-værelses rækkehus, så er du kommet til det rette sted. Her får du et rummeligt køkken-alrum, hvor køkkenet er placeret i den ene ende og giver god plads til spisebord og stuemøbler.

Værelser
Boligen har et stort soveværelse og et stort ekstra værelse. Begge værelser har tre fastmonterede skabe og masser af plads til senge, skriveborde m.v.

Badeværelse
Boligen har et badeværelse og et ekstra toilet. Badeværelset er placeret på 1.sal og toilettet er i stueetagen. Det er også her din vaskemaskine/tørretumbler er placeret.

Entré
Når du træder ind ad hoveddøren, mødes du af boligens entre. Her er der teknikrum. Der er god plads til at du selv kan hænge en knagerække op og stille en skohylde.

Uderum
Fra rækkehusets stue er der direkte adgang til den hyggelige terrasse og dit grønne område. Foran boligen finder du også et flisebelagt område og dit opbevaringsskur. Obs. alle billeder og plantegninger er vejledende.

Specifikationer

Type Rækkehus
Energimærke A2015
Indrykket 06.01.2025
Område Lucernehøjen
Husleje
Depositum
Retning NV
Etager Stuen
Værelser 3
Areal 98 m²
Husdyr Ja
Parkering Fælles
Ledig Udlejet

Plantegninger

Beregn din boligstøtte

Når du trykker beregn, vil du under alle boliger kunne se, hvor meget boligstøtte I ca. kan få.
Obs. Boligstøtteberegneren er kun vejledende.

Ønsker du en beregner med flere muligheder, finder du en officiel beregner hos borger.dk

Kontakt vores udlejningsrådgiver

Sonja Wind
Udlejningsrådgiver,

Lucernehøjen

91 89 99 91
swi@birchgm.dk

Bliv kontaktet

Har du spørgsmål til et af vores projekter, sidder vi klar til at hjælpe dig. Udfyld felterne nedenfor, og den udlejningsansvarlige for projektet vil kontakte dig hurtigst mulig.

Bestil fremvisning

Vi glæder os til at fremvise vores nye og moderne lejeboliger til dig. Den udlejningsansvarlige for dette projekt vil kontakte dig, så I sammen kan aftale en tid for fremvisning.

Bestil brochure

Modtag vores lækre udlejningsbrochure og dyk ned i de forskellige boliger og det fantastiske område, som de ligger placeret i. Du modtager brochuren på mail.

*Ved tilmelding accepterer du at modtage Birch Ejendommes nyhedsbrev. Samtidig accepterer du, at vi registrerer og behandler dine oplysninger. Dine oplysninger anvendes udelukkende til at udsende nyhedsbreve til dig. Du kan altid afmelde din tilmelding.

houses








Vis alle beliggenheder

Boligtype



Husleje - DKK

Størrelse - m²