orderPresentation: False

Bakkegårdsvej

Vejle

Rækkehus 4 Værelser 88 m²

H-85-4 | Bakkegårdsvej 71

Lys og indbydende 4-værelses rækkehus, med egen terrasse og grønt område.
Obs. alle billeder og plantegninger er vejledende.

Læs mere om området

Beskrivelse af boligen

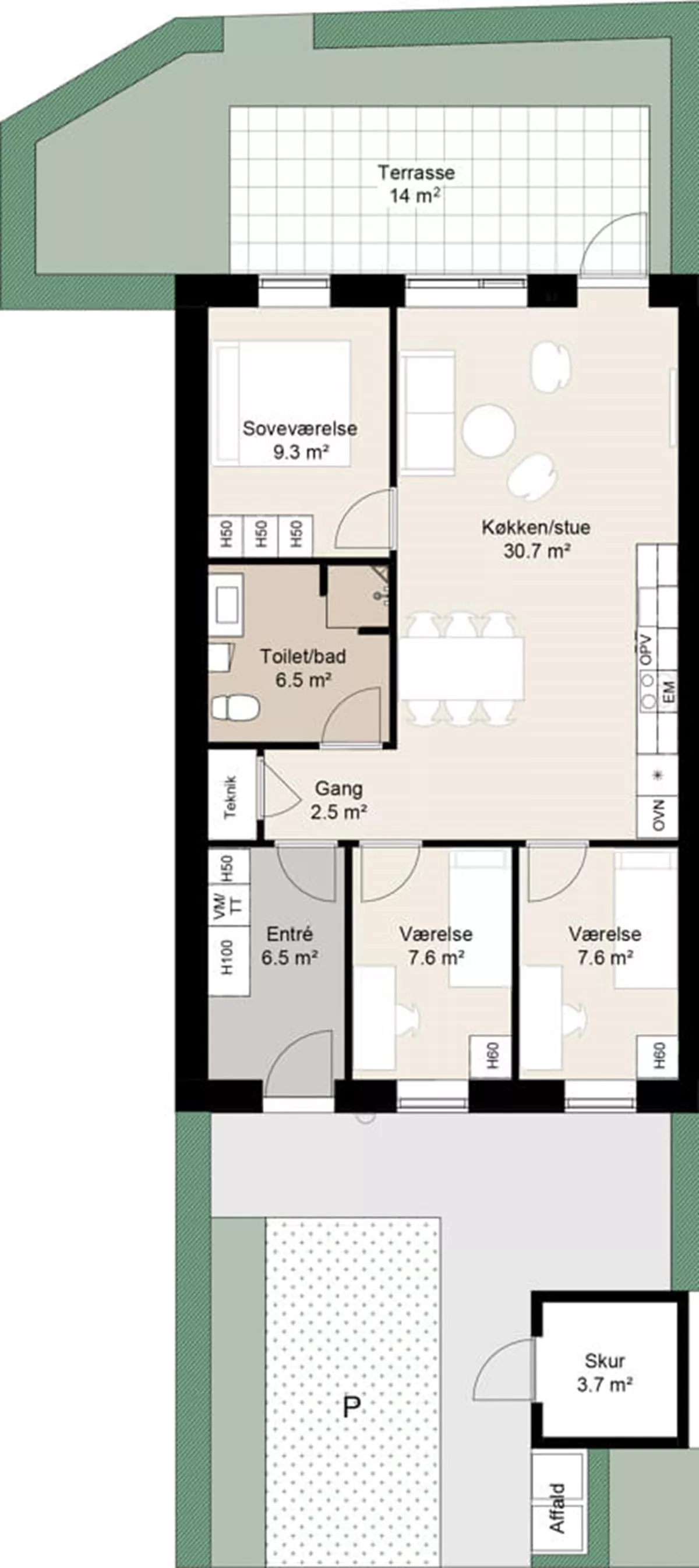
Køkken og stue
Dette skønne fireværelses rækkehus er bygget om et stort og hyggeligt køkken-alrum, som fungerer som boligens hjerterum. Køkkenet er placeret langs den ene væg, hvormed pladsen optimeres mest muligt. I alrummet er der altså god plads til et større spisebord og sofaområde til hele familien.

Værelser
Boligen rummer to værelser og et soveværelse. Soveværelset ligger spredt fra de resterende værelser. Rummet er udstyret med tre fastmonterede højskabe og får et skønt lysindfald fra vinduet der har udsigt ud til den private have. De to ekstra værelser ligger i modsatte ende og indeholder også opbevaringsmuligheder og plads til både seng og skrivebord mm.

Badeværelse
Badeværelset tilgås via den lille gang, der også forbinder køkken og entré. Badeværelset opføres i stilrene kvalitetsmaterialer og farver, der passer til resten af boligen. Det indeholder toilet, håndvask med opbevaring, væghængt skab samt en bruseniche.

Entré
I boligens entré finder du en masse opbevaringsplads samt vaskesøjle med vaskemaskine og tørretumbler. Der er i øvrigt god plads til yderligere at indrette med ekstra opbevaring eller blot pynte med en bænk og planter.

Uderum
Boligen har to uderum – et foran boligen og et bag boligen. Foran er et stort flisebelagt udeområde, hvor man med fordel kan placere et cafésæt, stole eller krukker. Her finder du også et fint opbevaringsskur og en privat parkeringsplads. Bag boligen er den rummelige terrasse med et mindre græsareal, hvor du kan grille og slappe af i dine havemøbler. Obs. alle billeder og plantegninger er vejledende.

Specifikationer

Type Rækkehus
Energimærke BR18
Indrykket 13.06.2025
Område Bakkegårdsvej
Husleje
Depositum
A/C vand & varme Afregnes med forsyning
Retning S
Etager Stuen
Værelser 4
Areal 88 m²
Husdyr Ja
Parkering Privat
Ledig Udlejet

Plantegninger

Beregn din boligstøtte

Når du trykker beregn, vil du under alle boliger kunne se, hvor meget boligstøtte I ca. kan få.
Obs. Boligstøtteberegneren er kun vejledende.

Ønsker du en beregner med flere muligheder, finder du en officiel beregner hos borger.dk

Kontakt vores udlejningsrådgiver

Sonja Wind
Udlejningsrådgiver,

Bakkegårdsvej

91 89 99 91
swi@birchgm.dk

Bliv kontaktet

Har du spørgsmål til et af vores projekter, sidder vi klar til at hjælpe dig. Udfyld felterne nedenfor, og den udlejningsansvarlige for projektet vil kontakte dig hurtigst mulig.

Bestil fremvisning

Vi glæder os til at fremvise vores nye og moderne lejeboliger til dig. Den udlejningsansvarlige for dette projekt vil kontakte dig, så I sammen kan aftale en tid for fremvisning.

Bestil brochure

Modtag vores lækre udlejningsbrochure og dyk ned i de forskellige boliger og det fantastiske område, som de ligger placeret i. Du modtager brochuren på mail.

*Ved tilmelding accepterer du at modtage Birch Ejendommes nyhedsbrev. Samtidig accepterer du, at vi registrerer og behandler dine oplysninger. Dine oplysninger anvendes udelukkende til at udsende nyhedsbreve til dig. Du kan altid afmelde din tilmelding.

houses








Vis alle beliggenheder

Boligtype



Husleje - DKK

Størrelse - m²